
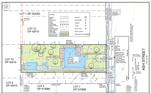
At the start of any subdivision development the initial critical survey is for a site plan of the property. This provides you with all the base information required for the future development.
The site plan will pick up the site and boundary ground levels, any existing building locations in relation to the legal boundaries, manholes and above ground services, street furniture including vehicle crossings, kerb, footpath and any power poles, and stormwater cesspits.
The plan forms the basis of the scheme plan for subdivision and can also be used for any engineering design required. The plan can also be used by an architect for the future house design.
So the importance of a good clear, detailed site survey should not be underestimated.





